Seamless Modeling
Precision-Driven Mechanical BIM Solutions for Every Sector
Mechanical BIM Services at ASC Technology Solutions enhance the accuracy of construction in the commercial, industrial, residential, healthcare, educational construction and other major projects.
Our compliance with globally recognized standards offers highly synchronized and trustworthy Mechanical BIM outputs to MEP contractors, consultants, and fabricators all around the world. To achieve smart Mechanical BIM Services, our team uses high-technology software to generate spool drawings, fabrication deliverables, and Mechanical Fabrication Drawing Services. With our solid background in Mechanical Coordination Services, Mechanical System Coordination Services, and Mechanical System Clash Detection Services, we are confident that any Mechanical System can be fully constructed without errors. We also offer Mechanical Shop Drawing Services, Mechanical Drafting Services, Mechanical Quantity Takeoff, Mechanical As-built Design Services, and Mechanical Bill of Quantity Elements. Our international business operations facilitate unhindered coordination and consistent Mechanical BIM Services to the varying project requirements.
Impactful design
End-to-End HVAC & Mechanical Modeling Backed by Global Expertise
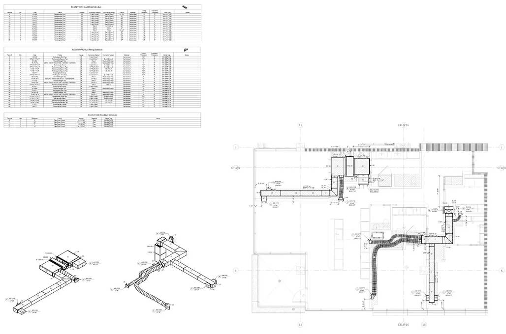
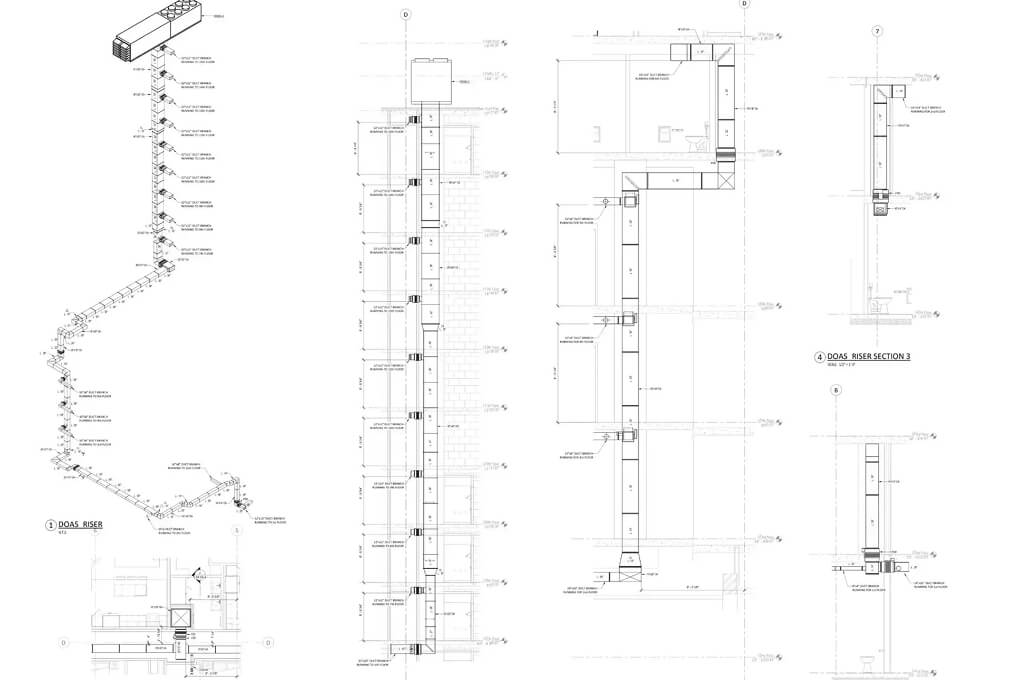
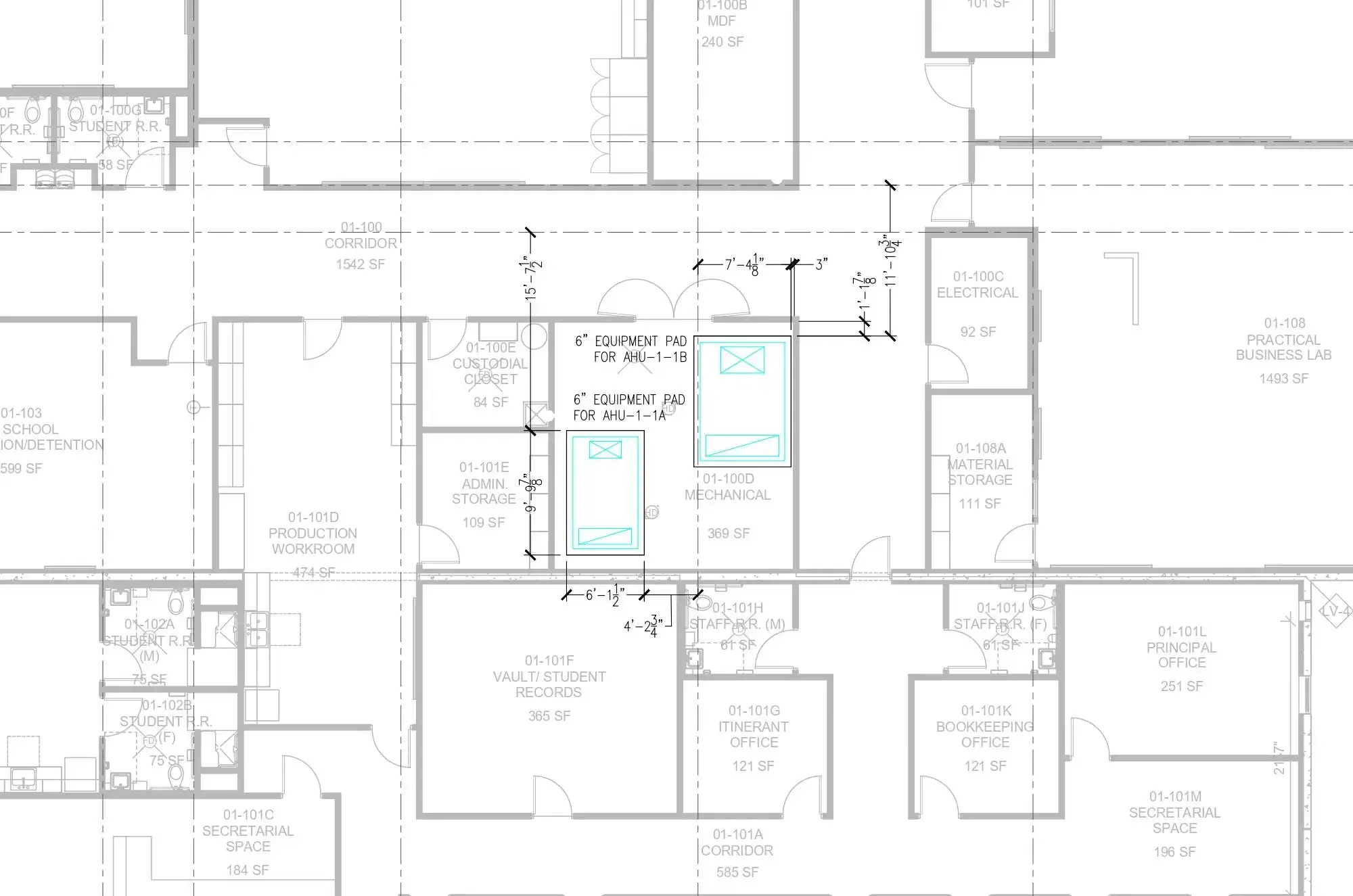
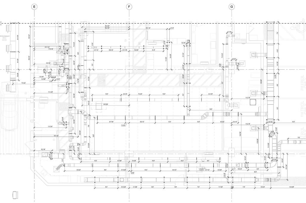
State-of-the-art HVAC BIM Services and 3D HVAC Modeling Services by ASC convert intricate mechanical and HVAC designs into the required leveraged BIM models that are either LOD 100 or LOD 500. Our solution gives each Mechanical BIM product an integrated, precise, and completely coordinated output that includes architectural, structural, electrical, plumbing, HVAC, and fire-protection trades, which translates into seamless installation processes and reduced on-site confrontations. Our team provides high-accuracy Mechanical System Modeling Services that support clients from schematic design through installation, whether working with CAD, PDF, or Design IFC files. With our extensive project background, we optimize project delivery with the help of the best Mechanical BIM Services, accurate depiction of geometry, detailed installation, and total HVAC Duct Shop Drawing Services. With seamless constructability, specifically accurate documentation, and full representation of a mechanical system, our globally trusted workflows in the Mechanical BIM, Mechanical BIM Services, and HVAC BIM Services make ASC the choice in Mechanical Outsourcing services and HVAC BIM Services.
Transformative Solutions
Our Extensive Mechanical BIM Services
Turning complex ideas into practical, high-quality outcomes while empowering clients to achieve success with confidence and clarity.
Mechanical 3D Modeling
Your 2D mechanical drawings are transformed into accurate data-intensive Revit Mechanical 3D Models, allowing the improvement of the visualization, streamlined coordination, and enhanced performance. Under our Mechanical BIM Services, these models become the basis of the correct planning and smooth construction processes.
Integrated Mechanical Drafting & Design Support
ASC offers extensive drafting and design services, which enhance the pre-planning and development of Mechanical BIM and HVAC BIM Services. Our team is keen on precision, uniformity, and a unified adjustment and integration of schematic plans to detailed component modeling, with multidisciplinary projects.
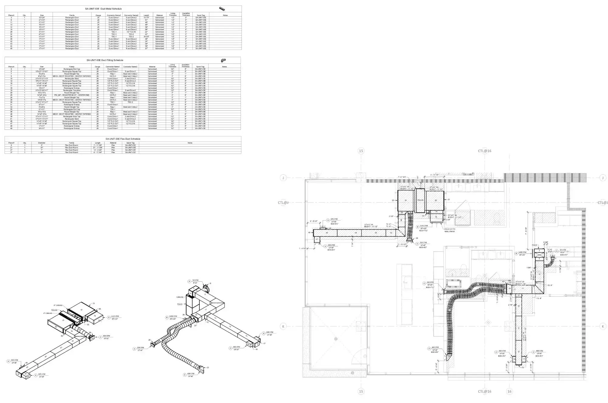
Mechanical Fabrication & Shop Drawings
Our experts design LOD 400 Mechanical and HVAC models with the support of the elaborate fabrication and shop drawings. Such Mechanical Shop Drawing Services provide duct fabricators, contractors, and installers with transparent construction-ready papers that minimize mistakes and decrease the time of installation.
Mechanical System & HVAC 3D Modeling
Our BIM models are very accurate and precise, in terms of both mechanical and HVAC, which promotes clarity, coordination, as well as on-site construction. Our innovative 3D HVAC Modeling Services and HVAC BIM Services provide us with models we can design based on design-friendly HVAC equipment and as-built updates of mechanical equipment, valves, fittings, and accessories.
Mechanical Coordination Services
ASC provides a clash-free relationship between your project and our value-based mechanical system coordination. Our Mechanical Coordination Services ensure the efficiency of the alignment of mechanical layouts with architectural, structural, electrical, plumbing, and fire-protection systems to eliminate conflicts during the breakdown of installation.
Mechanical Quantity Take-Off (QTO)
Through intelligent BIM processes, we create precise and automatically updated elements of the mechanical bill of quantities (BOQ). The Mechanical Quantity Takeoff is immediately updated on any model changes, and the procurement teams can always operate using well-calculated and reliable information.
Featured Projects
Inspiring Modern Spaces, Built to Last
Take a glimpse into our thoughtfully planned and precisely executed work, which sets our standards apart.
Unlock advantages
Benefit Yourself By Working With Us
- ASC Technology Solutions provides high-accuracy mechanical system clash detection, which gives all the models in line with project specifications and the world industry standards in order to construct the models flawlessly.
- We carefully scrutinize all the inputs of clients and deliver accurate RFIs with intelligent recommendations to address any missing information, wrong inputs, or inconsistencies in design and deliver error-free mechanical drafting services.
- Our fully synchronized Mechanical BIM models are created through a single cloud-based system and will enhance the level of collaboration in the field, as well as remove the delays in the construction process.
- The 3-D mechanical modeling will prevent conflicts in space, i.e., the optimization of the system layouts when they are still at the design phase, to eliminate expensive rework on-site.
- We are highly qualified in MEP fabrication drawings as well as HVAC duct shop drawing services, which guarantee fabricators and contractors with clear and build-ready documentation to access a smooth and efficient installation process.
- Using innovative tools of 3D BIM modeling, ASC Technology Solutions makes the workflow in projects easier and faster, improves precision in designs, and promotes improved building performance over time.
- The data-driven insights of mechanical BIM modeling drive better coordination, improve the quality of MEP, minimize errors, and make intelligent decisions about planning to operations.
our working process
Creating Remarkable Spaces with Precision
We have combined technical skills with real project knowledge to provide quality BIM-based solutions. From early concept to detailed execution, we strive to make the right decisions, collaborate, and create long-term value that helps make decisions smarter and project-based results successful.
01
Concept & Consultation
The first step we take towards your project is to know about your objectives and the technical challenges of the project. Our professionals work hand-in-hand with the stakeholders to establish the scope, expectations, and a solid ground for efficient and quality delivery of the BIM.
02
Design & Planning
Our team is able to produce coordinated BIM models that are clear and precise, reflecting design intent. We also plan and validate to ensure there is an optimized workflow, fewer conflicts, and improved coordination of all project disciplines.
03
Development & Execution
We have approved designs that we convert to fine BIM models, ready to construct. Our execution phase stresses compliance and accuracy which the effective coordination is achieved, and the rework is reduced, enabling projects to proceed smoothly.
04
Final Delivery & Handover
We provide complete validated BIM models and documents depending on the project requirements. We have a well-organized handover approach that guarantees a seamless transition operation, and proper data accessibility with long-term functionality to the construction, operation, and facility management teams.



- 2k+
Align with Businesses that Choose Quality
Model insights
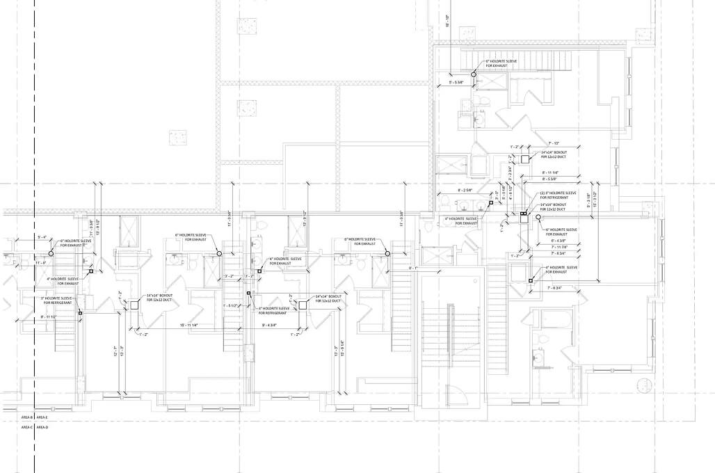
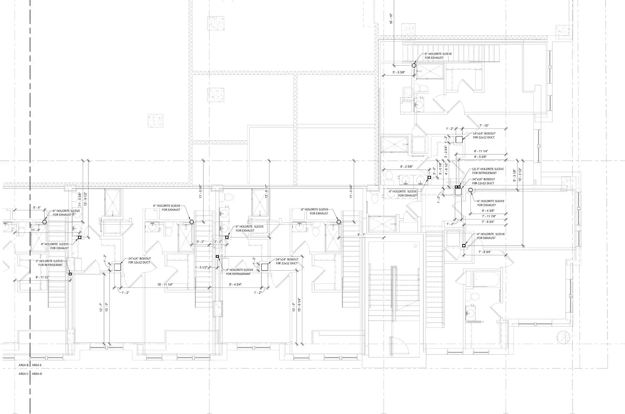
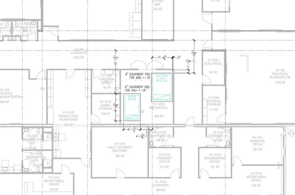
Sample Drawings
Take a closer look at our sample drawings to see how we transform complex project requirements into clear, precise outputs.
Your Guide
FAQ
Mechanical BIM refers to designing, planning, and modeling of mechanical systems through savvy 3D models. As opposed to the usual 2D CAD drawings, BIM models are information-intensive and have data on the dimensions of the components, materials, performance data, and the spatial association of the components with other buildings. This allows virtual testing and organization of anything before any actual building is constructed, and this saves time and money.
The mechanical BIM services generally include:
- HVAC (Heating, Ventilation, and Air Conditioning): comprehensive assignment of ductwork, air conditioning units (AHUs), chillers, boilers, diffusers, etc., and exhaust systems.
- Plumbing: Plumbing design for effective water supply, drainage, and sanitary systems, including pipes, pumps, and fittings.
- Fire Protection: Appropriate location of the sprinkler systems, standpipes, and suppression facilities.
- Mechanical Piping: Proper routing and connectivity points of the different piping networks.
Yes. The advantages carry on to the lifecycle of the building. The data-rich model is a helpful tool for facility management as it could support:
- Scheduling proper preventive maintenance.
- Monitoring the performance of energy over time.
- Consideration of future renovation/upgrade.
- Developing effective as-build documentation for building owners and operators.
Accuracy is ensured by:
- Executing 3D models that are accurate in dimensions and material requirements.
- Strict clash-detection/coordination procedures with architectural and structural model implementations.
- By BIM industry standards, project-specific definitions, including a BIM Executive Plan (BEP), and certain Levels of Development (LOD).