Seamless Modeling
Unified MEP Coordination Services for Conflict-Free Project Delivery
ASC Technology Solutions focuses on providing MEP Coordination Services and MEP BIM Coordination Services that are very efficient in integrating the mechanical, electrical, plumbing, and fire-protection systems in a single building, fully equipped and maintained BIM environment.
We will remove design discrepancies and on-site conflicts by ensuring smooth constructability by aligning all trades in the initial design stage. In our team, clashes are resolved – duct of HVAC cuts through beams or plumbing lines, crossings of electrical routes are identified with the help of specific Clash Detection and BIM Coordination Services. All of these issues are spotted, examined, and fixed under the coordinated model and lead to the manufacturability of 2D and 3D fabrications. Our workflow has covered everything, from commercial towers and industrial plants to hospitals and residential complexes, and made sure it is done smoothly in accordance with the code and with an excellent project efficiency with advanced BIM Coordination Services.
Impactful design
Advanced BIM Intelligence for Precise Coordination and Zero Rework
Armed with the latest software, including Revit, NavisWorks, and CDE systems, ASC Technology Solutions is more focused on ensuring project reliability through thorough MEP BIM Coordination Services and powerful MEP Clash Detection Services. Our experts carry out full Clash Detection Services and detect clashes regarding HVAC, electrical, plumbing, fire protection, structural, and architectural. Every conflict is recorded and monitored, and then solved by using streamlined services to Clash Detection and BIM Coordination to make sure your team is working on a fully coordinated model. Our proactive strategy allows contractors, engineers, and fabricators to minimize the delays, minimize the re-work, and obtain precision in the installation. The MEP Coordination Services and the general BIM Coordination Services of ASC will give your project clarity, accuracy, and long-term performance in terms of design up to the final construction.
Transformative Solutions
Our Extensive MEP Coordinatio Services
Turning complex ideas into practical, high-quality outcomes while empowering clients to achieve success with confidence and clarity.
Mechanical and HVAC Coordination Excellence
Our Mechanical System Coordination Service aims at identifying and eliminating interdisciplinary conflicts between mechanical and HVAC factors with unparalleled accuracy. We create a guide to perfection with all ducts, pipes, and other elements using sophisticated Mechanical Coordination Services, rework is avoided, and the schedule of the project is never lost. This smooth integration also improves the overall performance of the system in addition to minimizing risks that exist on-site, as well as minimizing mistakes made during construction.
Mechanical System Clash Detection Services
On our specialized MEP Clash Detection Services, we critically examine the complete network in the design process to identify conflicts at early stages of the design. Using the latest Mechanical BIM processes, we will provide intelligent thinking that will streamline the installation order and eliminate expensive problems in the field.
HVAC BIM Services for Flawless Delivery
HVAC BIM Services offer technical expertise together with BIM-based intelligence to develop a model of the HVAC systems that would be highly accurate. We make mechanical installations smarter, safer, and more efficient by helping project teams to make layouts optimized and coherent in ensuring accessibility, clearance, and constructability.
Plumbing System Coordination Services
Our overall Plumbing System Coordination Services involve identification, reporting, and fixing of potential design-based flaws through the plumbing networks- smaller pipes, risers, and plumbing fixtures. Through collaboration with Mechanical, Electrical, Structural, and Architectural trades, we can make the working processes easier and introduce sanity to complicated plumbing designs.
Plumbing System Clash Detection Services and BIM coordination
The Plumbing System Clash Detection and BIM coordination Services that we are targeting never experience any bottlenecks, even before construction happens. With the aid of high-end BIM products, we will examine the plumbing systems at all angles so that we will not be faced with any possible intersection with MEP and architectural elements in the field.
Electrical Coordination & Clash-Free Modeling
Our electrical team uses the best in industry platforms, e.g., Navisworks, to create the finest clash-free and highly coordinated 3D models, enabling the execution to be flawless. This intensive approach will amplify the precision of the design and guarantee the absence of mistakes in the Revit Electrical Modeling Services, reducing the chances of disruption at the site and enhancing the effectiveness of the project.
Fire Protection System Clash Detection and Coordination
The fire protection experts study routes, possible conflicts, as well as constructability in FPS plans. With our BIM coordination services and highly developed clash detection, we will eliminate problems at the initial stage and make sure projects meet the specified project requirements-enabling safer setups and fully optimized fire protection systems.
Featured Projects
Inspiring Modern Spaces, Built to Last
Take a glimpse into our thoughtfully planned and precisely executed work, which sets our standards apart.
Unlock advantages
Benefit Yourself By Working With Us
- ASC Technology Solutions assists in providing MEP Coordination Services that can be used to prevent the occurrence of clashes in the design through the development of integrated 3D models and the generation of specific Clash Detection Services that are used to detect and resolve conflicts during the design phase before construction has been initiated.
- By using MEP BIM Coordination Services, there is less reworking in the project since the clashes will be detected at the early stages of the virtual model rather than during on-site execution, which will save time and reduce expensive delays.
- The BIM Coordination Services facilitate all disciplines, such as Mechanical, Electrical, Plumbing, Structure, and Architecture, joining forces during the design phase and enhancing information flow, and narrowing down on inconsistencies in the design.
- Through the virtual resolution of conflicts, there is a reduced usage of material waste, capable of being used in areas where fewer adjustments are required on the ground, resulting in effective procurement and installation.
- Economy of scale is achieved when BIM enables space to construct the project in a digital form in advance, before going to the field to eliminate potential costly field clashes and limit the unnecessary labor and material costs.
- The high quality of the project work, the clear decision-making process, and the optimization of the working process are the benefits of the improved coordination in the early stages.
- Models that do not lead to clashes improve construction sequencing, which has minimized delays and made the implementation of the project smoother.
our working process
Creating Remarkable Spaces with Precision
We have combined technical skills with real project knowledge to provide quality BIM-based solutions. From early concept to detailed execution, we strive to make the right decisions, collaborate, and create long-term value that helps make decisions smarter and project-based results successful.
01
Concept & Consultation
The first step we take towards your project is to know about your objectives and the technical challenges of the project. Our professionals work hand-in-hand with the stakeholders to establish the scope, expectations, and a solid ground for efficient and quality delivery of the BIM.
02
Design & Planning
Our team is able to produce coordinated BIM models that are clear and precise, reflecting design intent. We also plan and validate to ensure there is an optimized workflow, fewer conflicts, and improved coordination of all project disciplines.
03
Development & Execution
We have approved designs that we convert to fine BIM models, ready to construct. Our execution phase stresses compliance and accuracy which the effective coordination is achieved, and the rework is reduced, enabling projects to proceed smoothly.
04
Final Delivery & Handover
We provide complete validated BIM models and documents depending on the project requirements. We have a well-organized handover approach that guarantees a seamless transition operation, and proper data accessibility with long-term functionality to the construction, operation, and facility management teams.



- 2k+
Align with Businesses that Choose Quality
Model insights
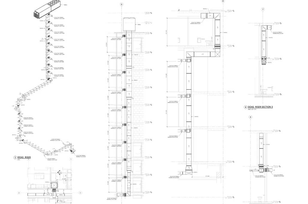
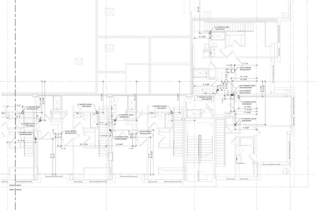
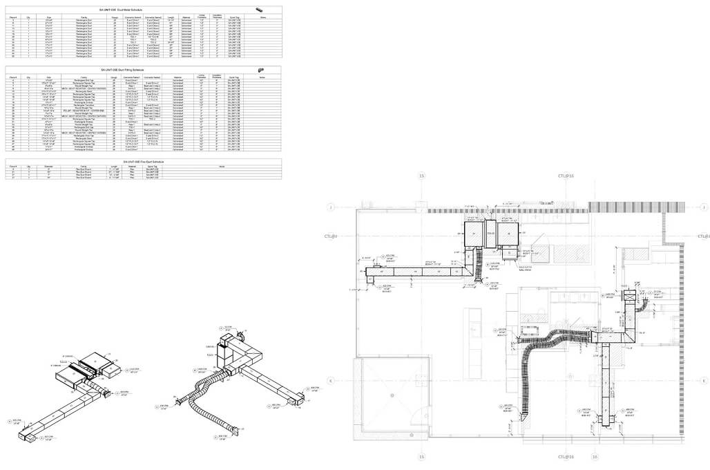
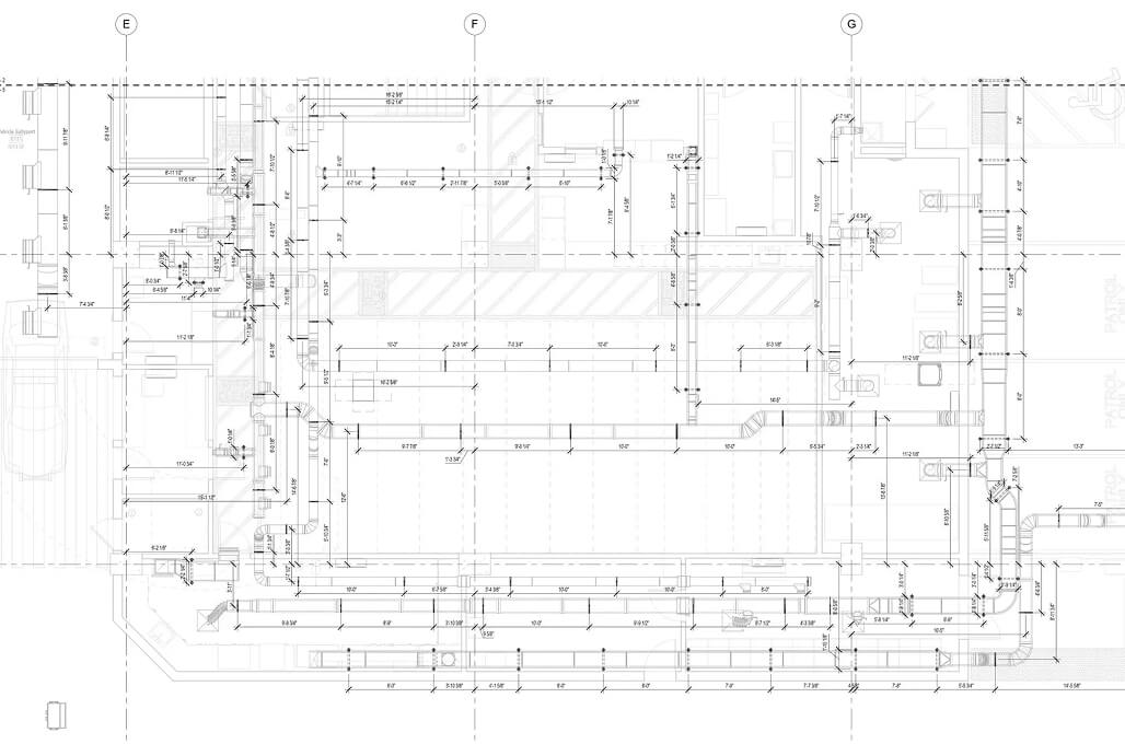
Sample Drawings
Take a closer look at our sample drawings to see how we transform complex project requirements into clear, precise outputs.
Your Guide
FAQ
Mechanical: Ventilation, Air conditioning, heating.
Electrical: Electricity supply, distribution system, lighting system, and communication system.
Plumbing: Wastage, sewage systems, drainage, supply of water, and sanitation.
Fire Safety (also commonly referred to as MEPF or MEPFS): Fire suppression and alarms.
It is crucial for:
- Clash Prevention: Detecting Conflicts in a virtual space (e.g., a system duct putting a pipe into a blockage) and avoiding them by being detected on-site.
- Reducing Costs and Time: Reducing costly, on-site rework and time, according to some studies, cost savings have been achieved by effective BIM coordination by several folds.
- Raise Safety and Quality: To avoid the occurrence of faults and leaks in the systems, the systems are supposed to be in compliance with the building codes and design requirements.
- Enhancing Collaboration: Enhancing communication and collaboration among the architects, engineers, contractors, and subcontractors.
MEP coordination is a joint effort among many stakeholders that includes the general contractor, MEP consultants, subcontractors, and a special MEP or BIM coordinator. The coordinator of the MEP process contributes to the compliance and regulates the integration process, as well as promotes communication.
The coordination of MEPs must preferably start at the design development or early pre-construction stage. An early start would give enough time to detect and solve conflicts virtually before the structure construction is started.
The BIM-based process would typically entail the following modern steps:
- Making reviews of architectural and structural plans.
- Construction of elaborate 3D systems of the entire MEP systems.
- Clash detection with special software (e.g., Navisworks).
- Examining and eliminating observed conflicts using coordination meetings and updating models.
- Developing coordinated drawings and shop drawings to accomplish correct on-site building and possible prefabrication.
- Refurbishment of the models to have correct as-built documentation for maintenance in the future.
Clash detection is the particular application of finding the locations of physical overlap or conflict between different building systems in the 3D model. MEP is a more general and persistent process, which involves clash detection, but it can also cover design review, team-to-team conflict resolution, and creating integrated construction drawings.